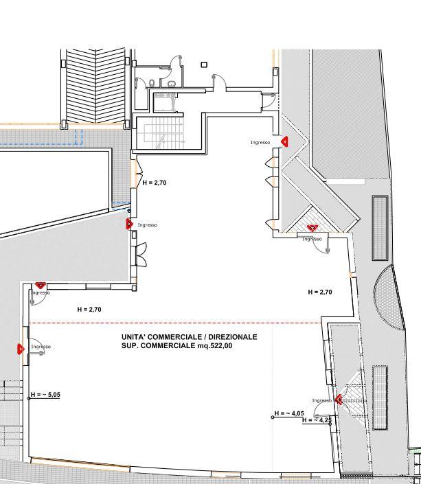
522mq
Dati annuncio : Verkauf Häuser, Conegliano
Riferimento AP17
Vendesi in centro a Conegliano, inserito in un contesto di pregio al piano terra, esclusivo locale ad uso direzionale-commerciale-ristorazione di 520 mq con posti auto esterni ed interrati. Per maggiori informazioni, valutazione progettuale e d´investimento, trattative riservate in sede.
Si intende precisare che gli indirizzi presenti negli annunci non sono identificativi dell´ubicazione precisa dell´immobile, danno un riferimento solo generico della zona al cliente che ricerca, al fine di tutelare la privacy e riservatezza del venditore. Per visionare l´immobile o per ricevere ulteriori informazioni contattateci: 0438.1962179. - Le nostre sedi : Montebelluna (TV) - Maser (TV) - Conegliano (TV) - Pieve di Soligo (TV) - Maerne di Martellago (VE). Classe Energetica: B - IPE: 0.00kWh/mq anno
- VorschlagIch biete
- VertragVerkauf
- Preis-
- Gesamtquadratmeter522
- EnergieklasseB
- BauartCommerciale
- ProvinzTreviso
- GemeinsamConegliano
- Datum02-11-2025 05:19:40
- CodeEa-4bbbf3






