affitto monolocale 160mq
1.500,00 €

0 Wie
0 Wie
Dati annuncio : Mieten affitto, San Martino Buon Albergo
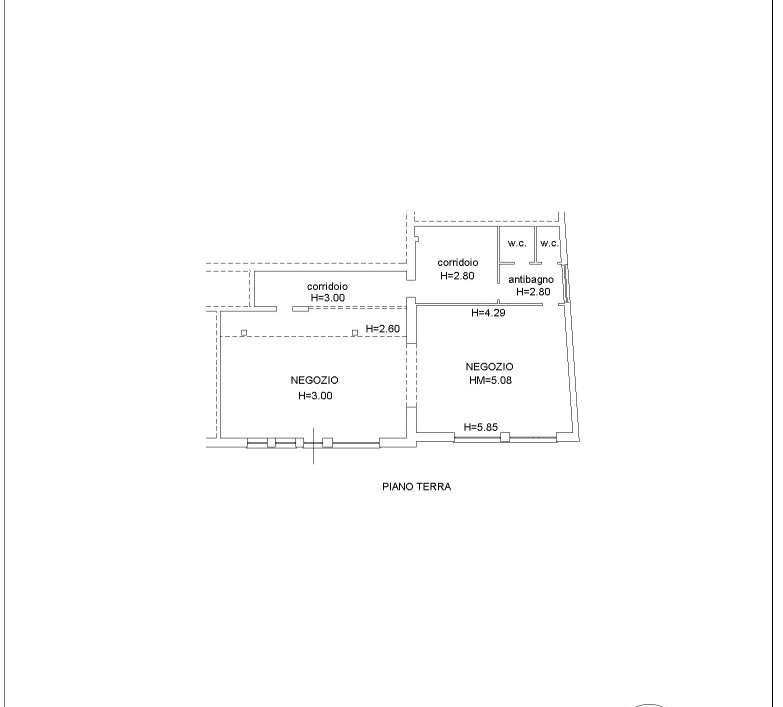
L´IMMOBILIARE ZDF propone in affitto su strada di alto passaggio, negozio vetrinato di 160 metri quadri openspace, disimpegno e due bagni.
CLASSE ENERGETICA: In fase di valutazione
- VorschlagIch biete
- VertragMieten
- Preis1.500,00 €
- Zimmer1
- Gesamtquadratmeter160
- Bad2
- EnergieklasseVa
- AufzugNo
- EmpfangNo
- ProvinzVerona
- GemeinsamSan martino buon albergo
- Datum05-11-2025 05:25:08
- CodeEa-bc2bd8






