affitto Via Bernina bilocale 61mq
Dati annuncio : Mieten affitto, Busto Arsizio
PER QUESTO ANNUNCIO RIVOLGERSI AL PROFESSIONISTA IMMOBILIARE GEOM. PIETRO CAPPELLO CELL. 335.6611560; EMAIL INFO@EVERESTIMMOBILIARE.IT
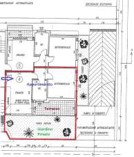
Busto Arsizio (VA). Zona Ospedale. Affittasi, tramite contratto TRANSITORIO a persone REFERENZIATE, in una zona molto tranquilla vicino all´ospedale e in un´ottima e curata palazzina, luminoso e comodo bilocale di 61 mq posto al piano terra e composto da: soggiorno con angolo cottura, camera da letto matrimoniale, disimpegno armadiabile, bagno, terrazzo e un carino giardino privato di pertinenza, attrezzato con rete per animali, dove poter soggiornare. Riscaldamento e produzione acqua calda sanitaria autonomi con caldaia incassata nel muro posta nel balcone. Ottime finiture. Completamente arredato con anche lavastoviglie e materasso. Non disponibile nè di box auto nè di cantina. Canone di locazione comprensivo di spese condominiali. Solo referenziati. Necessari documenti reddituali e motivo locazione. Possibilità di tenere animali domestici tranquilli.
Per informazioni e appuntamenti contattare Geom. Pietro Cappello al seguente recapito telefonico cell. 335.6611560
CLASSE ENERGETICA: E 155,56 kWh/m3 a
Accessori:
Aria Condizionata, Cancello Elettrico, Doppi Vetri, Ingresso Indipendente, Passaggio Pedonale, Porta Blindata, Tavolini Esterni, Video Citofono
- VorschlagIch biete
- VertragMieten
- Preis950,00 €
- Jahr2010
- Zimmer2
- Anzahl der stockwerke3
- Qm garten28
- Terrasse mq11
- Gesamtquadratmeter61
- Zimmer1
- Doppelzimmer1
- Bad1
- Terrassen1
- EnergieklasseE
- Energieklasse (ipe)155.56
- ZustandBuono
- AufzugNo
- BauartMedio
- KochenAngolo cottura
- GartenPrivato
- HeizungAutonomo
- EinrichtungArredato
- PanoramaVista giardino
- ZubehörAria condizionata, cancello elettrico, doppi vetri, ingresso indipendente, passaggio pedonale, porta blindata, tavolini esterni, video citofono
- EmpfangNo
- ProvinzVarese
- GemeinsamBusto arsizio
- AdresseVia bernina
- Datum05-11-2025 05:25:08
- CodeEa-b402c6











