Appartamento bilocale 45mq
30.000,00 €

0 Wie
0 Wie
Dati annuncio : Verkauf Appartamento, Palombara Sabina
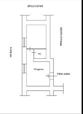
PALOMBARA SABINA - Via Trento - Proponiamo in vendita caratteristico appartamento nel centro storico della città, vicino ai servizi principali, sito al piano 1° di una piccola palazzina senza ascensore. Trattasi di 40 mq utili (45 mq di commerciale) così disposti: soggiorno con angolo cottura e camino, disimpegno con bagno e una camera da letto. Adatto anche per uso investimento o semplicemente come un posto dove andarsi a rilassare nei week end e non solo. L´immobile è da ristrutturare e libero subito. Prezzo € 30.000 - Per ulteriori informazioni potete contattare la Bea Immobiliare allo 06/90018074 - 06/90018696 - 327/0411867 oppure richieste.beaimmobiliare@gmail.ocm.
- VorschlagIch biete
- VertragVerkauf
- Preis30.000,00 €
- Zimmer2
- Gesamtquadratmeter45
- Zimmer1
- Bad1
- EnergieklasseG
- Energieklasse (maßeinheit)Kwh/m²a
- ZustandDa ristrutturare
- AufzugNo
- KochenAngolo cottura
- ImmobilienartAppartamento
- ProvinzRoma
- GemeinsamPalombara sabina
- Datum13-11-2025 05:57:37
- CodeEa-f3c426











