Appartamento bilocale 64mq

Dati annuncio : Verkauf Appartamento, Lissone
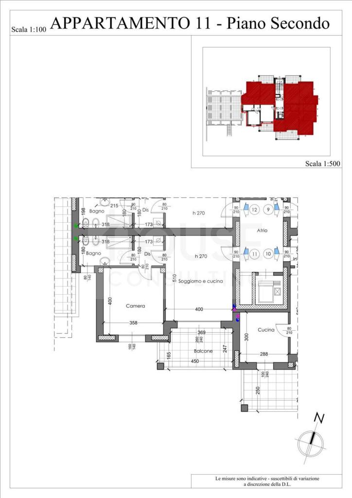
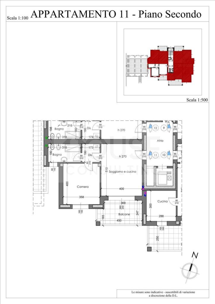
Residenza Graziella – Appartamento Rif. 11
Nel cuore di Lissone, a pochi passi dalla stazione FS e dai principali servizi, nasce un nuovo ed esclusivo progetto residenziale.
La “Residenza Graziella” propone 26 appartamenti di prossima realizzazione, da 2 e 3 locali, con ampi terrazzi o giardini privati, pensati per offrire un perfetto equilibrio tra design moderno, comfort abitativo ed efficienza energetica.
L’appartamento n. 11, situato al secondo piano, è composto da:
- Ingresso su luminoso soggiorno con ampia vetrata scorrevole e accesso al terrazzino
- Cucina abitabile
- Disimpegno zona notte
- Camera matrimoniale
- Bagno
Disponibilità di box singoli a partire da € 25.000, dotati di serranda sezionale automatica con telecomando, oppure posti auto scoperti a € 15.000.
Costruzione ad alto risparmio energetico, con Classe A e dotazioni di ultima generazione:
- Riscaldamento a pavimento
- Impianto fotovoltaico per la produzione di energia elettrica delle parti comuni
- Ventilazione meccanica controllata per il ricambio continuo dell’aria
- Isolamenti termici e acustici avanzati
- Serramenti in legno con triplo vetro certificati CasaClima
- Predisposizione per antifurto perimetrale e climatizzazione
- Tapparelle motorizzate con cassonetto a scomparsa
- Porte interne con cerniere a scomparsa e serratura magnetica
Finiture di alto livello: gres porcellanato o parquet, illuminazione LED su balconi e parti comuni, porte blindate e design contemporaneo.
Soluzioni ideali anche come investimento, grazie alla posizione strategica, vicina al centro di Lissone, alla stazione ferroviaria e a tutti i principali servizi (scuole, negozi, ristoranti, supermercati).
Per informazioni:
House&Consulting Arcore – Tel. 039 6012742 – www.hcarcore.it
Le immagini hanno scopo puramente illustrativo e non costituiscono elemento contrattuale.
Le misure riportate sono indicative e possono subire variazioni in fase di realizzazione.
- VorschlagIch biete
- VertragVerkauf
- Preis220.000,00 €
- Zimmer2
- Plan2
- Gesamtquadratmeter64
- Zimmer1
- Bad1
- EnergieklasseA
- Energieklasse (ipe)15
- Energieklasse (maßeinheit)Kwh/m²a
- KochenCucina a vista
- ImmobilienartAppartamento
- ProvinzMonza e brianza
- GemeinsamLissone
- Datum15-11-2025 05:10:09
- CodeEa-f2433d











