Appartamento quadrilocale 132mq

Dati annuncio : Verkauf Appartamento, Cesenatico
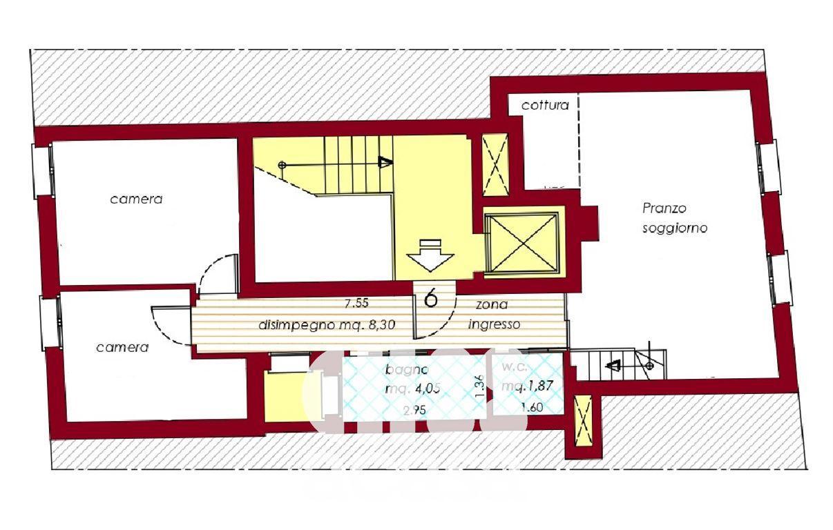
CESENATICO - PORTO CANALE, su uno degli scorci più fotografati e suggestivi della Riviera Adriatica, il Porto Canale di Cesenatico, abbiamo il piacere di proporvi in esclusiva un complesso immobiliare composto da varie tipologie di appartamenti. L´ appartamento proposto si trova al secondo piano, è composto da luminoso soggiorno con angolo cottura e un doppio affaccio sul caratteristico Porto Canale Leonardesco, due camere da letto, doppi servizi ed un comodo soppalco. E´ servito da ascensore che lo collega fino al piano interrato dove abbiamo una spaziosa cantina. Il garage di proprietà si trova a circa 300 metri in linea d´aria dall´appartamento, in comodo complesso interrato chiuso da cancello. Prenota ora il tuo appartamento da sogno in una cornice meravigliosa ! !
Per informazioni ACASA_Cesenatico, Viale Roma 22/24: Alex Bartolucci 366-1252033, tel. centralino 0547-1952930
Tutte le nostre proposte su ACASA.INFO
Le presenti informazioni non costituiscono elemento contrattuale.
- VorschlagIch biete
- VertragVerkauf
- Preis560.000,00 €
- Zimmer4
- Gesamtquadratmeter132
- Zimmer2
- Bad2
- EnergieklasseC
- Energieklasse (ipe)7888
- Energieklasse (maßeinheit)Kwh/m²a
- AufzugSi
- KochenAngolo cottura
- ImmobilienartAppartamento
- ProvinzForli-cesena
- GemeinsamCesenatico
- Datum07-11-2025 05:27:41
- CodeEa-5f1476











