Appartamento quadrilocale 135mq

Dati annuncio : Verkauf Appartamento, Bovisio-Masciago
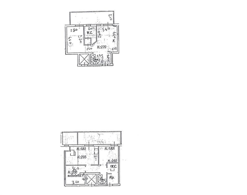
Zona residenziale al confine con Varedo, in elegante palazzina di 20 famiglie con facciata in mattoni a vista, panoramico appartamento di 135 mq disposto su 2 livelli così composto: (piano terzo di 60 mq) soggiorno con balcone, cucina abitabile con uscita sul balcone e bagno; scala a chiocciola che accede al piano quarto mansardato (75 mq con altezza minima 1,80 m e massima 3,00 m) dove sono presenti 3 camere da letto di cui 2 con balcone e bagno. Cantina e box singolo. Immobile ben tenuto e panoramico esposto ad est con ampi balconi sfruttabili.
FINITURE: Ceramica nella zona giorno e nei bagni, parquet nella zona notte. Serramenti in legno con doppio vetro e persiane. Aria condizionata in entrambi i piani. Video citofono. Tutto in perfetto stato. Rif.45
- VorschlagIch biete
- VertragVerkauf
- Preis228.000,00 €
- Zimmer4
- Gesamtquadratmeter135
- Zimmer3
- Bad2
- EnergieklasseF
- Energieklasse (ipe)24344
- Energieklasse (maßeinheit)Kwh/m²a
- KochenCucina abitabile
- BoxBox singolo
- ImmobilienartAppartamento
- ProvinzMonza e brianza
- GemeinsamBovisio-masciago
- Datum05-11-2025 06:00:13
- CodeEa-3b5e9b











