Appartamento quadrilocale 139mq

Dati annuncio : Verkauf Appartamento, Villasanta
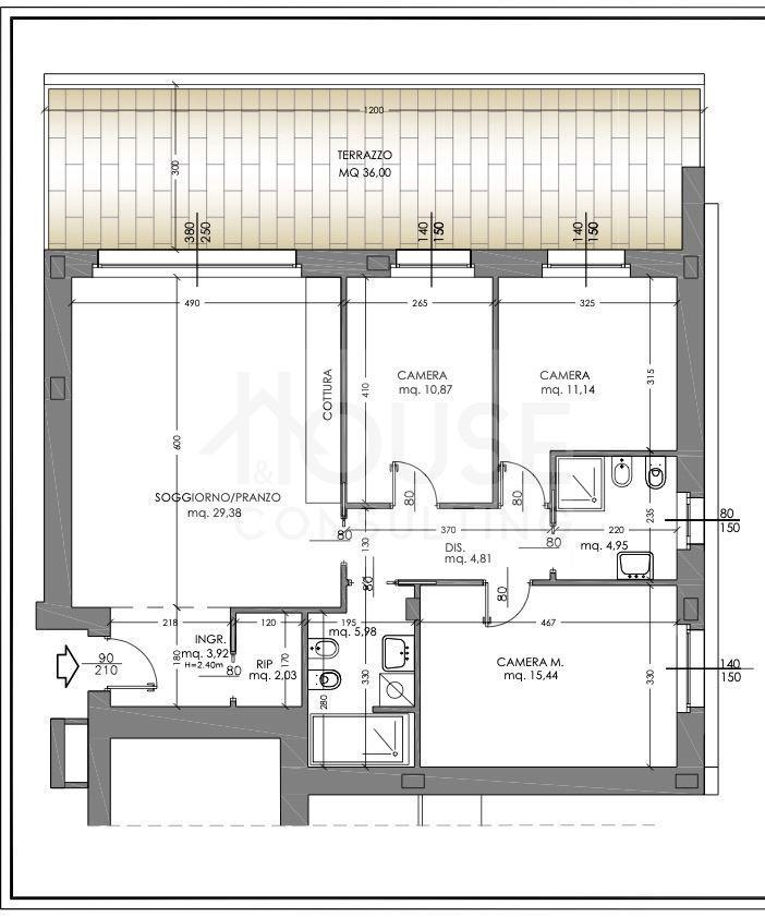
Residenza Le Magnolie – Appartamento Rif. 12
Signorile quadrilocale di 114 mq con terrazzo da 36 mq, situato al piano secondo della prestigiosa Residenza Le Magnolie di via Doria di Villasanta.
Un’abitazione moderna e funzionale, caratterizzata da luminosità, finiture di pregio e un elevato comfort abitativo.
Composizione:
- Ingresso
- Ampio soggiorno/pranzo con vetrata scorrevole e accesso diretto al terrazzo
- Cucina a vista
- Camera matrimoniale
- Due camere
- Due Bagni
- Ripostiglio
Gli interni sono personalizzabili grazie a un capitolato di alta qualità, che prevede materiali ricercati come ceramiche di grandi formati (fino a 90x90 cm)
Le residenze sono progettate secondo i più moderni standard di efficienza energetica e comfort:
- Riscaldamento a pavimento autonomo
- Predisposizione per ventilazione meccanica controllata, condizionamento e deumidificazione
- Pannelli fotovoltaici
- Serramenti ad alte prestazioni con tapparelle elettriche e zanzariere
Completano la proprietà una cantina e la possibilità di box singolo o doppio con serranda automatica.
Per informazioni:
House & Consulting Arcore – Tel. 039 6012742
www.hcarcore.it
Le immagini hanno scopo puramente illustrativo e non costituiscono elemento contrattuale.
Le misure riportate sono indicative e possono subire variazioni in fase di realizzazione.
- VorschlagIch biete
- VertragVerkauf
- Preis480.000,00 €
- Zimmer4
- Plan2
- Gesamtquadratmeter139
- Zimmer3
- Bad2
- EnergieklasseA+
- Energieklasse (ipe)15
- Energieklasse (maßeinheit)Kwh/m²a
- KochenCucina a vista
- TerrasseSi
- BoxBox singolo
- ImmobilienartAppartamento
- ProvinzMonza e brianza
- GemeinsamVillasanta
- Datum07-11-2025 05:27:41
- CodeEa-f85b69










