Appartamento trilocale 93mq

Dati annuncio : Verkauf Appartamento, Udine
A Udine proponiamo un esclusivo residence dal design moderno ed accattivante, composto da un fabbricato sviluppato su 3 piani fuori terra e composto da 12 abitative.
Il complesso si distingue per la qualità delle finiture sia generali che interne alle singole unità immobiliari con un aspetto tipologico proprio dell’architettura più raffinata.
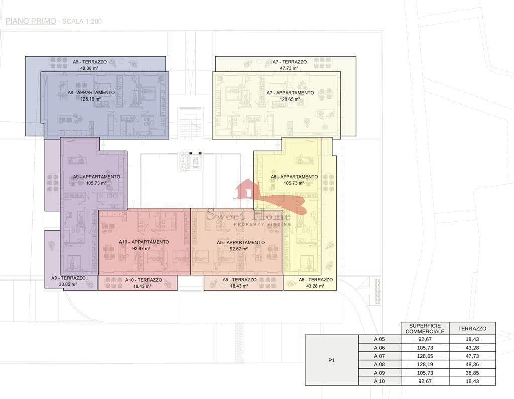
Il progetto prevede la realizzazione di un piano interrato con garage e cantine sopra al quale, troviamo i tre corpi che ospitano al piano terra 4 appartamenti con i giardini di pertinenza, al piano primo altre 6 unità abitative ed infine al secondo, i due attici con le terrazze e due solarium all’ultimo piano.
In totale saranno disponibili 12 nuovi appartamenti in un’ottima zona di Udine.
I materiali e gli standard messi a disposizione dal capitolato lavori, l’ampiezza degli spazi, la luminosità, la vivibilità degli spazi interni saranno gli elementi caratterizzanti ed imprescindibili che impreziosiranno l’intero involucro abitativo. Tutte le tecniche costruttive, saranno volte a garantire un perfetto isolamento e taglio termico in ogni punto, in perfetta ottemperanza a quanto previsto dalle nuove norme tecniche per le costruzioni (NTC 2018) ed agli attuali parametri di risparmio energetico. Le strutture e gli impianti che compongono i nostri immobili sono volti a garantire al nuovo acquirente, tutti quegli accorgimenti che renderanno piacevole risiedervi in qualunque stagione.
Tutte le varie dotazioni impiantistiche, caratterizzanti i nostri immobili, sono volte a garantire un consumo di energia elettrica veramente prossimo allo zero. La presenza dell’impianto fotovoltaico e di pompa di calore autonoma, appositamente studiati, permettono di affermare che il risparmio energetico e le dotazioni previste siano ai massimi livelli di cui l’attuale tecnologia permette.
“Il comfort è il nostro punto di forza e la base di ogni nostra realizzazione”.
- VorschlagIch biete
- VertragVerkauf
- Preis335.000,00 €
- Zimmer3
- Anzahl der stockwerke3
- Gesamtquadratmeter93
- Zimmer2
- Bad2
- EnergieklasseA4
- KochenCucina a vista
- BoxGarage
- ImmobilienartAppartamento
- ProvinzUdine
- GemeinsamUdine
- Datum13-11-2025 05:57:37
- CodeEa-51803b











