Attico 330mq

Dati annuncio : Verkauf Attico, Cesena
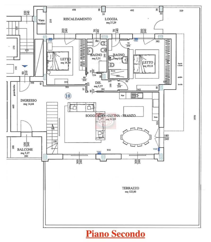
S. MANURO IN VALLE (ATC63b): in contesto di dieci unità di prossima realizzazione proponiamo splendido ATTICO disposto su due livelli e servito da ascensore. Al piano nobile troviamo un ampio ingresso/guardaroba con la luminosa zona giorno con cucina a vista per un totale di ben 68 mq , 2 camere da letto matrimoniali con 2 bagni e un ampio terrazzo su tre lati di c.a. 150 mq, ideale per pranzi e cene all´aperto e un ulteriore balcone dove affaccia l´ingresso/guardaroba. Al piano superiore (sottotetto alto) altri tre vani da sfruttare come camere e studio e un vano per il bagno. Completa il tutto un garage di 34 mq.
L´immobile verrà realizzato con FINITURE DI PREGIO e CARATTERISTICHE DI ALTO RISPARMIO ENERGETICO, ovvero: cappotto termico, riscaldamento autonomo a pavimento con pompa di calore, impianto fotovoltaico da 4 kw, infissi in pvc con anta-ribalta, zanzariere e avvolgibili in alluminio coibentato e motorizzati, tetto in legno ventilato, gronde e pluviali in acciaio inox, bagni con sanitari sospesi e box doccia in alluminio e cristallo, cassetta di sicurezza, luce di emergenza. Saranno inoltre forniti COMPLETI DI MACCHINARI e quindi già funzionanti i seguenti impianti: climatizzazione, allarme, aspirazione centralizzata, VMC (ventilazione meccanica controllata). N.B. Le presenti informazioni non costituiscono elemento contrattuale.
- VorschlagIch biete
- VertragVerkauf
- Preis1.059.000,00 €
- Gesamtquadratmeter330
- Zimmer4
- Bad3
- EnergieklasseA+
- AufzugSi
- KochenAngolo cottura
- TerrasseSi
- HeizungAutonomo
- ImmobilienartAttico
- ProvinzForli-cesena
- GemeinsamCesena
- Datum22-06-2025 05:54:48
- CodeEa-bb22a4







