Capannone 500mq
Dati annuncio : Mieten Capannone, Capannori
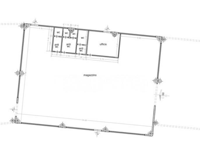
Rif.Ag. F420K - F420K - COMUNE DI CAPANNORI zona sud - In complesso commerciale con accesso indipendente proponiamo in affitto capannone attualmente ad artigianale ( ma ideale anche per farne un uos magazzino /deposito) allo stato grezzo avanzato ma già dotato di impianto elettrico di base , l´immobile a pianta quadrata misura 500 mq è composto da unico vano open space con portellone elettrico e secondo accesso tramite porta per entrare a piedi , antibagno, quattro servizi igienici, vano uso ufficio e la possibilità data la conformazione dellimmobile di poterne realizzare un altro. L´altezza interna sotto trave è di mt 5.00 - La porzione di callare che lo divide da unaltra unità immobiliare, è idonea ad uso di parcheggio, sosta per il carico e lo scarico dei mezzi anche pesanti è da considerarsi pertinenza esclusiva - Non è presente l´impianto di risaldamento Ape in fase di rilascio. La struttura è stata realizzata in cemento armato. Attualmente l´ape è esente perché trattasi da immobile da completare - Sono richieste referenze documentabili - Al canone va aggiunta l´iva - E´ visionabile dal 1 agosto 2025 - Consegna prevista ottobre 2025. - SC9491408
- VorschlagIch biete
- VertragMieten
- Preis2.500,00 €
- Anzahl der stockwerke2
- PlanT
- Gesamtquadratmeter500
- Bad1
- Energieklasse (ipe)150 kwh/m2
- ZustandNuovo
- AufzugNo
- WeingutNo
- EinrichtungNo
- ServicegebührenAnnuali
- ProvinzLucca
- GemeinsamCapannori
- Datum04-11-2025 05:18:09
- CodeEa-5e7401

