Casa Semindipendente quadrilocale 148mq

Dati annuncio : Verkauf Casa Semindipendente, Faenza
Vendesi villetta a schiera nuova a Faenza, zona Borgo
Proponiamo in vendita una splendida villetta seminidipendente con giardinetto privato di nuova costruzione situata nella tranquilla zona residenziale del Borgo di Faenza.
L´immobile è progettato con particolare attenzione alla funzionalità e alla qualità dei materiali, offrendo un ambiente moderno, spazioso e luminoso.
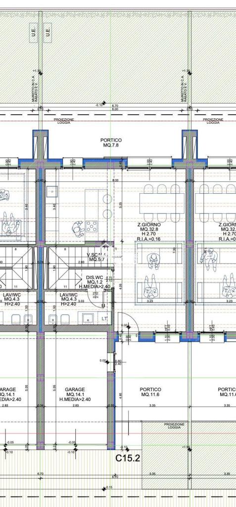
Piano Terra
- Zona Giorno: Ampio soggiorno progettato per accogliere sia una comoda area relax che una spaziosa zona pranzo. Le ampie vetrate garantiscono un’ottima illuminazione naturale e una vista sul giardino privato.
- Cucina spaziosa perfettamente integrata con la zona giorno.
- Bagno di servizio e lavanderia: una comoda zona servizi completa il piano terra, con bagno e lavanderia.
- Garage singolo, direttamente accessibile dall’interno della villetta, con spazio per un´auto e area per riporre attrezzi.
Primo Piano
Zona notte: Al primo piano troviamo tre camere da letto:
- Camera matrimoniale con cabina armadio.
- Seconda camera singola ideale come cameretta per bambini o studio.
- Terza camera doppia.
- Bagno completo dotato di finiture di alta qualità e predisposti per ogni comfort.
- Logge: Ogni camera ha accesso diretto alle logge, perfette per momenti di relax e per godere della tranquillità del quartiere.
Esterni
Giardino privato: ampio spazio verde che circonda la villetta, di circa 47 mq
Portico all´ingresso che funge da accogliente spazio d´accesso e si presta per essere arredato con sedute da esterno.
Questa villetta è la soluzione ideale per chi cerca un’abitazione moderna, in una zona tranquilla ma ben servita, con spazi ampi e confortevoli sia interni che esterni. Non esitate a contattarci per maggiori informazioni o per prenotare una visita.
Cl. en di progetto A3
- VorschlagIch biete
- VertragVerkauf
- Preis378.000,00 €
- Zimmer4
- Gesamtquadratmeter148
- Zimmer3
- Bad2
- EnergieklasseA3
- Energieklasse (ipe)59
- Energieklasse (maßeinheit)Kwh/m²a
- ZustandNuova costruzione
- KochenCucina abitabile
- GartenPrivato
- EinrichtungArredato
- ImmobilienartCasa semindipendente
- ProvinzRavenna
- GemeinsamFaenza
- Datum16-11-2025 05:52:10
- CodeEa-fd594a








