Immobile Commerciale bilocale 190mq

Dati annuncio : Verkauf Immobile Commerciale, Milano
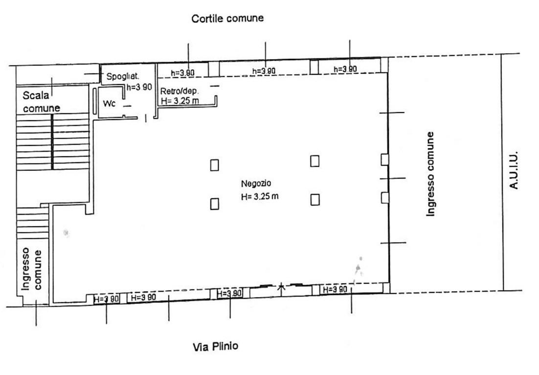
MILANO, VIA PLINIO 49 - Falco Immobiliare propone in vendita un IMMOBILE A REDDITO 7,5% ca. DA 190 mq, attualmente occupato da un importante marchio della GDO. L’unità immobiliare si distingue per la sua posizione strategica e per la presenza di tre vetrine, che garantiscono massima visibilità e appeal commerciale.
Il canone annuo attuale è di € 57.000, oltre Iva, con un affitto già attivo e gestito da un operatore di comprovata affidabilità nel settore.
Caratteristiche principali:
PREZZO MQ INFERIORE AI PREZZI DI ZONA
Locazione attiva con marchio GDO di rilievo
Tre vetrine su strada ad alto passaggio
Rendimento annuo garantito del 7,5%
Investimento ideale per chi cerca reddito garantito
In vendita a 770.000 euro, oltre Iva e imposte.
Contatta Falco Immobiliare per avere maggiori informazioni: www.falcoimm.it
- VorschlagIch biete
- VertragVerkauf
- Preis770.000,00 €
- Zimmer2
- Gesamtquadratmeter190
- Bad1
- EnergieklasseG
- Energieklasse (ipe)65
- Energieklasse (maßeinheit)Kwh/m²a
- VerfügbarkeitOccupato
- ImmobilienartImmobile commerciale
- ProvinzMilano
- GemeinsamMilano
- Datum02-12-2025 06:25:59
- CodeEa-d0f53e










