Industriale Via Alfred Bernhard Nobel 15 vani 1200mq
Dati annuncio : Verkauf Industriale, Parma
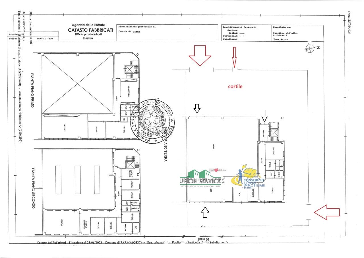
Parma all´interno del q.re industriale SPIP di via Forlanini, a due passi dal casello autostradale di Parma centro, proponiamo la vendita di un immobile industriale/artigianale in cat. D/7 costruito negli anni 2000. Attualmente in uso al proprietario, l´immobile viene venduto libero a 2 mesi. Trattasi di una porzione angolare libera su 3 lati , con area cortilizia recintata privata e completamente pavimentata di circa 700 mq.
Il plesso si trova in ottimo stato d´uso, senza barriere, con ascensore interno e ingressi separati fra uffici e zona produttiva.
- Piano terra, porzione ad uso magazzino/produttivo estremamente luminoso con altezza di 6,85 m per complessi mq. 400 riscaldati e finestrature motorizzate, oltre a locali deposito,laboratori,doppi servizi con spoglitoi,archivi e locale macchine per ulteriori mq 160.con 2 ingressi carrai e uno pedonale
- Piano Primo con eleganti ed arredati uffici, di 270 mq con reception e 6 vampi vani di uffci oltre i doppi servizi
- Piano secondo;ulteriori uffici dirigenziali arredati di 270 mq con ulteriori 9 ampie stanze di cui una sala riunioni e doppi servizi.
Entrambi i piani uffcio sono asserviti da un elegante ingresso indipendente di rappresentanza, impianto caldo/freddo ad aria , cablaggi, controsoffitti,doppi vetri.
Per informazioni e visite Union Service tel.3357708359
- VorschlagIch biete
- VertragVerkauf
- Preis790.000,00 chf
- Jahr2002
- Zimmer15
- Anzahl der stockwerke1
- Terrasse mq200
- Gesamtquadratmeter1200
- Bad6
- EnergieklasseF
- Energieklasse (ipe)288.0
- ZustandIn perfetto stato
- AufzugSi
- TerrasseSi
- GartenNs
- WeingutNo
- HeizungAutonomo metano
- BoxEin
- ImmobilienartIndustriale
- ProvinzParma
- GemeinsamParma
- AdresseVia alfred bernhard nobel
- Datum12-11-2025 05:47:48
- CodeEa-4bc8ba











