Laboratorio 5 vani 365mq
390.000,00 €

0 Wie
0 Wie
Dati annuncio : Verkauf Laboratorio, Milano
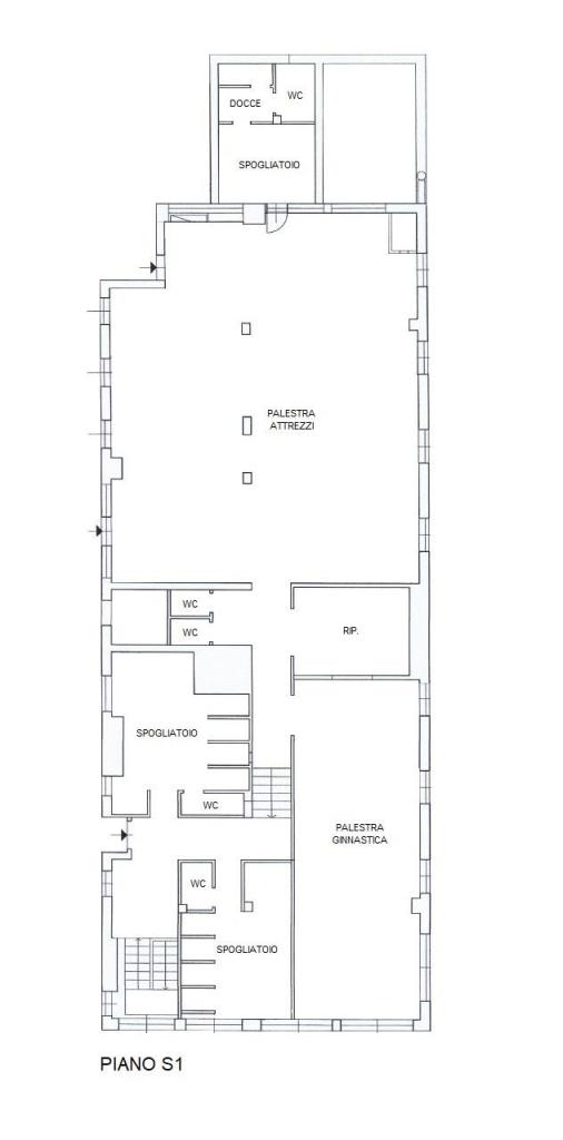
RIPAMONTI - VIA BIANCONI, 10 - Proponiamo in vendita ampio spazio ad uso laboratorio di ca. 365 mq posto al piano seminterrato con ingresso indipendente di uno stabile signorile.
L´immobile è composto da due spaziosi ambienti che si prestano a qualsiasi tipo di attività, 3 locali di dimensioni più ridotte utilizzabili come uffici, 3 spogliatoi con servizi oltre ad una cantina al piano seminterrato collegata da scala interna. L´immobile si presenta in buone condizioni interne. Situato nelle immediate vicinanze del quartiere Vigentino si trova a pochi passi da tutti i principali servizi della zona.
- VorschlagIch biete
- VertragVerkauf
- Preis390.000,00 €
- Zimmer5
- Gesamtquadratmeter365
- Zimmer5
- Bad4
- EnergieklasseF
- Energieklasse (ipe)5544
- Energieklasse (maßeinheit)Kwh/m³a
- ImmobilienartLaboratorio
- ProvinzMilano
- GemeinsamMilano
- Datum24-11-2025 05:16:54
- CodeEa-e51a1f











