Negozio 125mq
550,00 €
0 Wie
0 Wie
Dati annuncio : Mieten Negozio, San Miniato
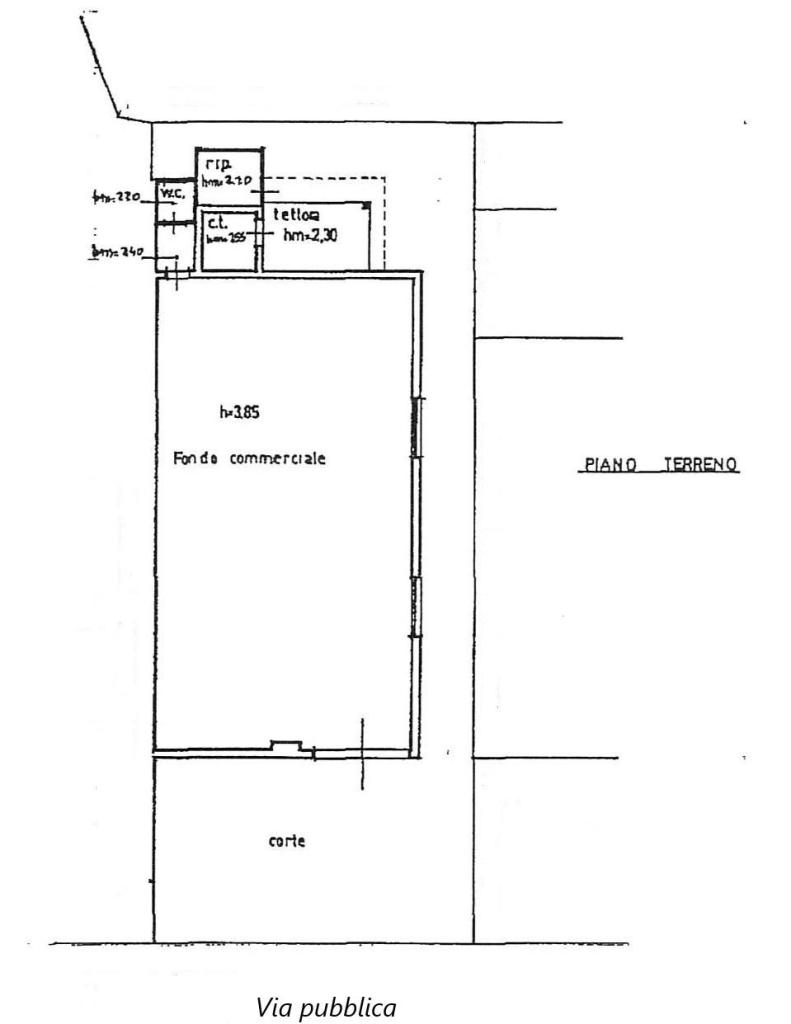
Rif.Ag. 2028 - Ponte A Egola - San Miniato - Fondo commerciale in affitto di 125 mq - posto al piano Piano terra di un fabbricato ubicato in zona centrale composto da unico ambiente da personalizzare, resede esterna sia frontale che tergale e 1 bagno - Rif. 2028 - SC9496539
- VorschlagIch biete
- VertragMieten
- Preis550,00 €
- Anzahl der stockwerke2
- PlanT
- Gesamtquadratmeter125
- Bad1
- ZustandBuono
- AufzugNo
- WeingutNo
- EinrichtungNo
- ServicegebührenAnnuali
- ProvinzPisa
- GemeinsamSan miniato
- Datum12-11-2025 05:52:33
- CodeEa-573d66

