Negozio 35mq
60.000,00 €
0 Wie
0 Wie
Dati annuncio : Verkauf Negozio, Pisa
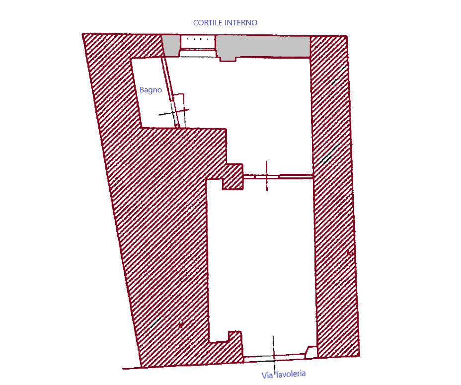
Rif.Ag. IV-0068 - PISA - VIA TAVOLERIA N. 8 - NEGOZIO cat. C/1 - Immediate vicinanze Borgo Stretto, Piazza dei Cavalieri, Piazza Garibaldi, La Sapienza, VENDESI MURA locale commerciale uso negozio CON CANNA FUMARIA della superficie di circa 35 mq con altezze m 3.90, composto da due vani oltre bagno, soffitto a cassettoni in legno, inserito nel contesto di un maggior edificio completamente ristrutturato, compreso il rifacimento del tetto e delle facciate rintonacate e ritinteggiate nel 2022. Libero subito, grandi potenzialità commerciali in zona centralissima. Per appuntamento e informazioni rivolgersi all´agenzia. - SC9087758
- VorschlagIch biete
- VertragVerkauf
- Preis60.000,00 €
- Gesamtquadratmeter35
- Bad1
- EnergieklasseG
- ZustandBuono
- AufzugNo
- BauartCommerciale
- WeingutNo
- EinrichtungNo
- ServicegebührenAnnuali
- ProvinzPisa
- GemeinsamPisa
- Datum04-11-2025 05:18:09
- CodeEa-a19a93








