Rustico / Casale 30 vani 700mq

Dati annuncio : Verkauf Rustico / Casale, Barberino di Mugello
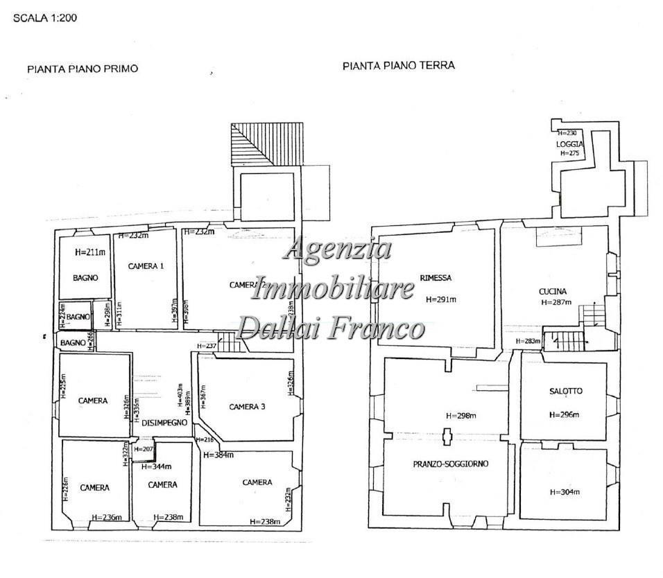
Barberino di Mugello (Galliano) - Bella proprietà vista lago composta da colonica (464 mq s.u.l.) su 2 livelli, piano terra e primo, in scarso stato conservativo, con fienile (230 mq) in parte diruto trasformabile in civile abitazione, terreno (9.843 mq) su 4 lati e 10 posti auto. Ampi spazi per disimpegnare la colonica dal fienile e viceversa. Possibilità di costruire seminterrato (230 mq), piscina fuori terra e casetta in legno. Facilmente raggiungibile (circa 600 mt. di strada bianca pianeggiante). Per motivi di privacy gli indirizzi degli immobili sono approssimativi. Maggiori informazioni e foto sul nostro sito internet Agenzia Immobiliare Dallai Franco di Scarperia (FI). Valutiamo i vostri immobili per la vendita e per la locazione. Ufficio 0558431039, e-mail franco@immobiliaredallai.com. I nostri orari: lun/gio: 9-15; mar/mer/ven: 12:30-18:30. Negli altri orari ed il sabato mattina riceviamo su appuntamento. Chiusi la domenica.
- VorschlagIch biete
- VertragVerkauf
- Preis350.000,00 €
- Zimmer30
- Gesamtquadratmeter700
- Zimmer10
- Bad2
- Parkplätze10
- EnergieklasseG
- Energieklasse (ipe)230
- Energieklasse (maßeinheit)Kwh/m²a
- KochenCucina abitabile
- GartenPrivato
- PanoramaVista lago
- ImmobilienartRustico / casale
- ProvinzFirenze
- GemeinsamBarberino di mugello
- Datum18-11-2025 06:11:37
- CodeEa-cf31b1











