vendita VIA FERMI 5 vani 260mq
Dati annuncio : Verkauf vendita, Lurago d'Erba
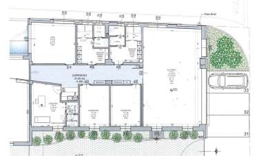
LURAGO D´ERBA immobile commerciale: zona centralissima e di ottima viabilità, proponiamo immobile commerciale (ottime finiture interne) di circa mq. 260, con area esterna e parcheggio, ideale per piccole attività artigianali e commerciali.
La BB STUDIO s.a.s. con sede in Erba, Via C. Battisti n. 22/b, è un´affermata società immobiliare con esperienza pluriennale nel settore.
Opera dal 1993 nel territorio comprendente le Province di Como, Lecco, Milano e Monza - Brianza, collaborando in modo continuativo con l´Associazione di categoria F.I.M.A.A. COMO, la prima associazione dell´intermediazione in Italia, che le ha offerto negli anni la possibilità di estendere i suoi rapporti lavorativi in un territorio più ampio.
Ricopre tutte le fasce e categorie del mercato immobiliare, sia esso residenziale che industriale o commerciale, con ampia esperienza sulla cantieristica essendo ufficio vendite di varie società.
Punta soprattutto sulla trasparenza della contrattazione sia per la vendita che per l´affitto.
L´ assistenza alla clientela rimane in primo piano, proponendo nelle varie fasi della compravendita le soluzioni più consone alle proprie esigenze; da, inoltre, la possibilità di valutare diverse soluzioni anche per quanto riguarda i mutui agevolati tramite istituti di credito affiliati.
CLASSE ENERGETICA: In fase di valutazione
- VorschlagIch biete
- VertragVerkauf
- Preis250.000,00 €
- Zimmer5
- Gesamtquadratmeter260
- Bad2
- EnergieklasseVa
- AufzugNo
- EmpfangNo
- ProvinzComo
- GemeinsamLurago d'erba
- AdresseVia fermi
- Datum05-11-2025 05:25:08
- CodeEa-b5250c









