vendita via montelungo trilocale 122mq
Dati annuncio : Verkauf vendita, Monza
Monza via Montelungo
Proponiamo nuova residenza in fase di costruzione.
Il progetto prevede la realizzazione di una palazzina ad uso residenziale di tre piani fuori terra e uno interrato, edificata in classe energetica A3; parte del lotto, facente parte del progetto, verrà riqualificato e destinato ad aera verde comunale con piante di alto fusto.
L´intervento prevede l´utilizzo di materiali e tecnologie di ultima generazione conformi a quanto previsto nella relazione energetica ed acustica:
Impianto fotovoltaico, riscaldamento a pavimento tramite pannelli radianti, impianto elettrico a gestitone tradizionale con comandi locali presenti negli ambienti oppure tramite applicazione Home+Control già configurata per il cliente, infissi in legno laccato con vetrocamera a basso emissivo e doppio vetro, tapparelle elettriche in alluminio, predisposizione impianto di raffrescamento mediante split e impianto di allarme volumetrico/perimetrale, ventilazione meccanica (VMC) capace di rinnovare costantemente l´aria indoor senza perdita di temperatura deumidificando gli ambienti per migliorare il benessere abitativo come la qualità dell´aria.
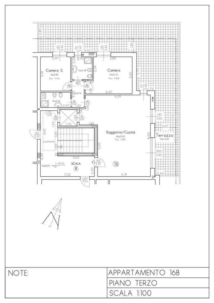
Disponibili unità di varie tipologie e metrature dal piano terra al piano terzo, con giardini ad uso esclusivo o ampi terrazzi e balconi.
Nel dettaglio proponiamo 3 locali sito al piano terzo e ultimo composto da: ingresso, ampia zona living con cucina a vista, due camere da letto, doppi servizi, ampio terrazzo angolare e locale cantina.
Ampia scelta capitolato interno e possibilità di adattare gli ambienti alle proprie esigenze, ove possibile, modificando ampiezza e disposizione dei locali con la supervisione dell´architetto/progettista.
Possibilità box singoli e doppi.
CLASSE ENERGETICA:
Accessori:
Antifurto, Aria Condizionata, Ascensore, Cancello Elettrico, Doppio Ingresso, Fibra Ottica, Impiando Domotica, Impianto Fotovoltaico, Impianto Satellitare, Pannelli Solari, Porta Blindata, Video Citofono
- VorschlagIch biete
- VertragVerkauf
- Preis419.000,00 €
- Zimmer3
- Anzahl der stockwerke3
- Plan3
- Terrasse mq80
- Gesamtquadratmeter122
- Zimmer2
- Doppelzimmer1
- Einzelzimmer1
- Bad2
- Terrassen1
- EnergieklasseA3
- ZustandIn costruzione
- AufzugSi
- BauartSignorile
- KochenA vista
- HeizungAutonomo
- ZubehörAntifurto, aria condizionata, ascensore, cancello elettrico, doppio ingresso, fibra ottica, impiando domotica, impianto fotovoltaico, impianto satellitare, pannelli solari, porta blindata, video citofono
- EmpfangNo
- ProvinzMonza e brianza
- GemeinsamMonza
- AdresseVia montelungo
- Datum05-12-2025 06:07:09
- CodeEa-458b8c











