vendita Via San Giovanni Bosco trilocale 101mq
Dati annuncio : Verkauf vendita, Induno Olona
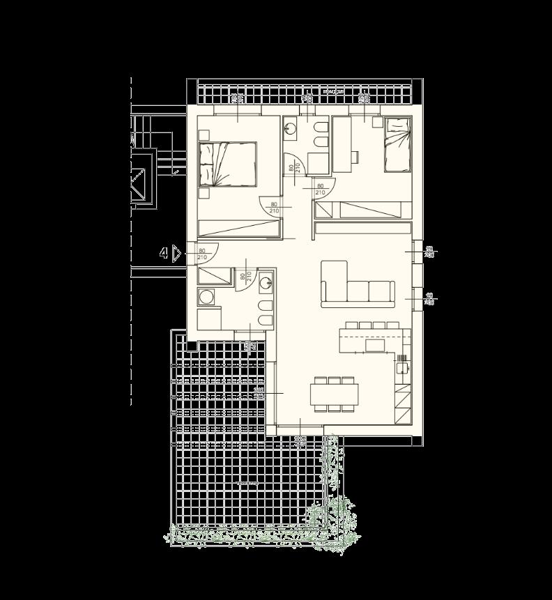
In una palazzina tranquilla di soli sei unità situata a Induno Olona, si realizzerà appartamento trilocale di circa 100 mq, con ampio terrazzo di 40 mq.
L´appartamento è strutturato da ampio soggiorno con cucina a vista creando uno spazio confortevole per la famiglia. Dopodichè si presentano una camera matrimoniale, una camera singola e doppi servizi, infine dalla zona giorno abbiamo l´ingresso che porta all´ampio terrazzo.
L´appartamento si conclude con una cantina e con la possibilità di acquistare uno spazioso box doppio al prezzo di 30.000EURO.
Ottima possibilità per chi desidera un immobile moderno, confortevole e con ampi spazi.
Oltretutto la zona in cui è posizionato l´immobile è ottimo in quanto è posta in zona centrale e ben collegata da molti servizi principali. Facile il raggiungimento di Varese e i confini Svizzeri.
In nuova palazzina, di soli sei unità, si realizza appartamento bilocale con terrazzo, posto al secondo piano.
L´appartamento di 60 mq, è composto da ingresso, zona giorno con cucina a vista nel quale c´è l´ingresso dell´ampia terrazza di circa 40 mq, che circonda la zona giorno fino ad arrivare alla camera matrimoniale, poi troviamo il bagno.
L´immobile inoltre possiede la cantina, e c´è la possibilità di acquistare box singolo al prezzo di 15.000EURO.
Posizionato in zona ottimale e centrale vista la vicinanza ai servizi principali, comoda anche per il facile raggiungimento di Varese e i confini Svizzeri.
Inoltre compreso nel prezzo di vetrina c´è la possibilità di avere la cucina 3,60 m Ernesto Meda, partner Arredo più.
Cantiere già in corso per la realizzazione della palazzina.
Non esitate a contattarci per fissare un appuntamento per avere maggiori informazioni. Cantiere già in corso per la realizzazione della palazzina.
Non esitate a contattarci per fissare un appuntamento per avere maggiori informazioni.
CLASSE ENERGETICA:
Accessori:
Ascensore, Cancello Elettrico, Doppi Vetri, Video Citofono
- VorschlagIch biete
- VertragVerkauf
- Preis310.000,00 €
- Zimmer3
- Terrasse mq40
- Gesamtquadratmeter101
- EnergieklasseA4
- AufzugSi
- ZubehörAscensore, cancello elettrico, doppi vetri, video citofono
- EmpfangNo
- ProvinzVarese
- GemeinsamInduno olona
- AdresseVia san giovanni bosco
- Datum05-06-2025 06:04:07
- CodeEa-893b79











