Via TEOFANE 6 vani 132mq
Dati annuncio : Verkauf Esavani, Siracusa
Retecasa propone in vendita un ampio appartamento di 132 mq situato nella tranquilla zona di Pizzuta, completo di garage di 30 mq. L´immobile si trova all´interno di un contesto recintato, con accesso a posti auto interni, garantendo sicurezza e comodità.
L’appartamento è posto al secondo e ultimo piano , servito da ascensore.
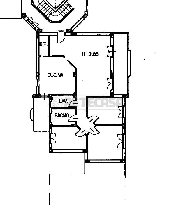
L´interno dell’appartamento è composto da un ingresso che si apre su un ampio soggiorno, una cucina abitabile, tre camere da letto spaziose, un bagno, una lavanderia e un ripostiglio. L’immobile è dotato di riscaldamento autonomo a metano, climatizzatori in tutte le stanze e infissi con doppio vetro, che assicurano un buon isolamento termico e acustico.
Attualmente, l´immobile è a reddito, rappresentando una buona opportunità anche per uso investimento, grazie alla sua disposizione e alle caratteristiche che lo rendono facilmente affittabile.
Il prezzo richiesto per l´acquisto è di € 195.000,00 trattabili.
Codice di riferimento: D974sr.
- VorschlagIch biete
- VertragVerkauf
- Preis195.000,00 chf
- Jahr2003
- Zimmer6
- Anzahl der stockwerke2
- Qm garten150
- Gesamtquadratmeter132
- Zimmer3
- Bad1
- EnergieklasseE
- Energieklasse (ipe)0.0
- ZustandPerfetto stato
- AufzugSi
- BauartPrestigio
- KochenAbitabile
- TerrasseNo
- GartenNd
- WeingutNo
- HeizungAutonomo a gas-metano
- BoxEin
- Eigentumswohnung kosten90.0
- ProvinzSiracusa
- GemeinsamSiracusa
- AdresseVia teofane
- CodeEa-0e6c14






