Villa a schiera 8 vani 190mq

Dati annuncio : Verkauf Villa a schiera, Montelabbate
đĄ OSTERIA NUOVA â VILLA DI TESTA UNICA NEL SUO GENERE
Esclusiva
Due appartamenti uniti in unâunica, straordinaria abitazione indipendente da cielo a terra.
Nel cuore del paese, in posizione comoda ma riservata, proponiamo in vendita esclusiva una residenza di prestigio nata dallâunione di due appartamenti distinti, che insieme hanno dato vita a spazi eccezionalmente ampi e raffinati.
Lâabitazione occupa tutta la porzione di testa del fabbricato, con ingresso indipendente, luminositĂ su tre lati e giardino privato di circa 130 mq.
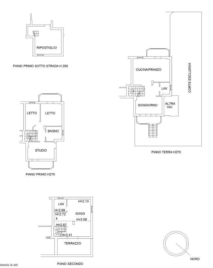
đ Composizione:
Piano Terra: doppio cancello pedonale che apre sul giardino esclusivo, in parte pavimentato e dotato di barbecue e pozzo privato â perfetto per pranzi, cene e momenti allâaperto.
Da qui si accede ai due ingressi indipendenti dellâabitazione.
Piano Rialzato: ampia e luminosa zona giorno con cucina spaziosa, elegante salotto e bagno di servizio.
Piano Primo: tre camere da letto, tutte con pavimento in parquet, bagno finestrato e terrazzi.
Piano Secondo (mansardato): ampia mansarda con stufa a pellet, terzo bagno e grande terrazzo panoramico.
Piano Seminterrato: accogliente tavernetta, doppio garage e due posti auto esterni.
⨠Lâimmobile si presenta in condizioni impeccabili, con finiture curate, spazi generosi e unâatmosfera calda e accogliente.
Perfetta per famiglie numerose che cercano comfort, indipendenza e qualitĂ costruttiva superiore, senza rinunciare alla comoditĂ dei servizi del centro.
đ PossibilitĂ di ricavare fino a quattro camere comode.
đś Prezzo âŹ. 370.000,00 â Rif. 184B
đ Per informazioni:
Graziano 339/2337650 â Marianna 333/1888892
âď¸ schiaraturagm@gmail.com
đ www.schiaraturaimmobiliare.it
đ Seguici su Facebook e Instagram
⨠Ci prendiamo cura delle vostre case come se fossero le nostre. â¨
- VorschlagIch biete
- VertragVerkauf
- Preis370.000,00 âŹ
- Zimmer8
- Gesamtquadratmeter190
- Zimmer4
- Bad2
- Parkplätze2
- EnergieklasseD
- Energieklasse (ipe)218
- Energieklasse (maĂeinheit)Kwh/m²a
- BauartDi prestigio
- KochenCucina abitabile
- GartenPrivato
- ImmobilienartVilla a schiera
- ProvinzPesaro e urbino
- GemeinsamMontelabbate
- Datum12-11-2025 05:08:56
- CodeEa-5666df











