Villa bifamiliare 5 vani 180mq

Dati annuncio : Verkauf Villa bifamiliare, Cesena
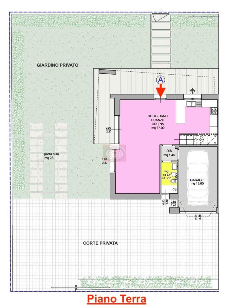
Cesena - Case Finali (BTC304): in zona residenziale di nuova realizzazione, proponiamo porzione di bifamiliare al grezzo avanzato, disposta su due livelli oltre ad ampio sottotetto. La porzione in oggetto e così disposta:
PIANO TERRA - ingresso su zona giorno open-space di 37 mq con zona cottura a vista con affaccio sul giardino privato di oltre 200 mq con area per posti auto, bagno e garage;
PIANO PRIMO - camera padronale con cabina armadio e bagno privato per un totale di oltre 20 mq, due camerette (mq 10 + 9,5), ulteriore bagno, 2 balconi;
PIANO MANSARDATO: ampio vano di c.a. 35 mq (dove poter realizzare ulteriore camera padronale o sala hobby) e un vano tecnico.
Si specifica che il prezzo proposto (euro 520.000,00) si riferisce con consegna al grezzo avanzato; l´acquisto è da privato (imposta al 2% sul prezzo di acquisto). ------ Ulteriori informazioni sui costi delle finiture in agenzia.
N.B.: Le presenti informazioni non costituiscono elemento contrattuale.
- VorschlagIch biete
- VertragVerkauf
- Preis520.000,00 €
- Zimmer5
- Gesamtquadratmeter180
- Zimmer3
- Bad3
- Balkone2
- KochenAngolo cottura
- GartenPrivato
- ImmobilienartVilla bifamiliare
- ProvinzForli-cesena
- GemeinsamCesena
- Datum31-10-2025 05:36:57
- CodeEa-019ede









